中古一戸建て 加東市梶原
所在地
加東市梶原
680万円
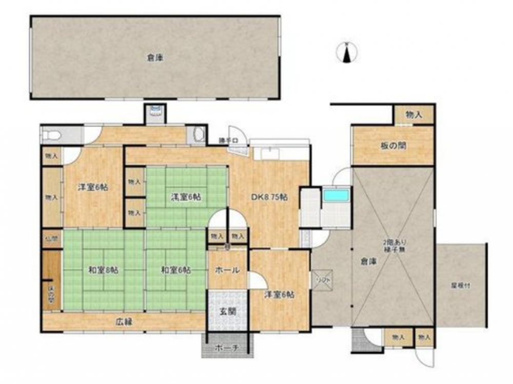
39.05坪
5SDK
物件概要
- 交通
-
加古川線 滝野駅 バス3分乗車 バス停上中(加東市 まで 徒歩9分
- 接道状況
-
西側 公道4m 間口約25m
北側 公道2.5m 間口約20m - 土地面積
- 628.18㎡ (190.02坪)
- 建物面積
- 129.12㎡ (39.05坪)
- 築年数
-
1975年
(昭和50)
1月
築51年 - 建ぺい率
- 60%
- 容積率
- 200%
- 土地権利
- 構造および階数
- 木造
- 小学校区
- 社
- 中学校区
- 社
- 私道負担
- 地目
- 現況
- 引渡時期
- 駐車場
- 上水道
- 公共
- 下水道
- 公共
- ガス
- プロパン個別
- 都市計画
- 用途地域
- 設備・条件
- 備考
-
建築許可理由:調整区域につき建築許可要
セットバック:要、農地法届出要、宅地造成工事規制区域 - 取引態様
- 仲介



